Reno City Council is moving forward with a proposed charter school in the North Valleys, after approving a conditional permit during an appeal.
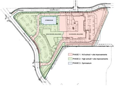
The proposed Mater Academy would serve 1,500 students grades K-12, at North Hills Blvd. and Beckwourth Drive.
The project triggered a Minor Conditional Use Permit, which was granted by City staff, but then appealed by the Washoe County School District.
During the appeal hearing, council members upheld the approval of the MUP with the additional conditions of adding a traffic light in the area and additional bike stalls at the site.
